АНАЛОГИ! Мы не гарантируем 100% совместимости предложенных позиций. Информация носит рекомендательный характер. Для подтверждения 100% совместимости требуется консультация специалиста.
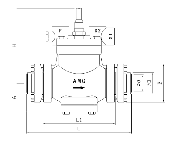
AM3-20 Основной сервоприводный вентиль AMG (20 D сварка, 3 пилота)
- Клапаны регулирования расхода, приводимые в действие различными управляющими клапанами, ввинчиваемыми в главный клапан или монтируемыми во внешнюю управляющую линию
- AM3 предназначены для использования с аммиаком и другими распространенными фторированными хладагентами в линиях подачи жидкости, всасывания, нагнетания или размораживания и имеют три отверстия, P, S1 и S2, для ввинчивания двух или трех управляющих клапанов
Соотношения между отверстиями, в которые можно ввинчивать контрольные клапаны на AM3, следующие:
- Управляющие клапаны на портах S1 и S2 соединены последовательно, таким образом, главный клапан будет открыт, если закрыт только один из подключенных управляющих клапанов, и он будет открыт, если оба управляющих клапана открыты одновременно.
- Управляющий клапан, ввинченный в P, соединен параллельно с управляющими клапанами в портах S1 и S2, поэтому клапан AM3 будет открыт, если управляющий клапан в P открыт, независимо от того, открыты или закрыты управляющие клапаны S1 или S2, и главный клапан будет закрыт, если управляющий клапан в P закрыт, и по крайней мере один из управляющих клапанов в S1 или S2 закрыты одновременно.
Технические характеристики и размеры
| Модель | AM3-20 |
| DN | 3/4" / 20 мм |
| φD, мм | 27 |
| φd, мм | 20 |
| A, мм | 65 |
| H, мм | 150 |
| L, мм | 190 |
| L1, мм | 125 |
| Kv | 6 |
| Cv | 7 |
Продажа товара осуществляется ФИЗИЧЕСКИМ и ЮРИДИЧЕСКИМ лицам.
Формирование корзины и оформление заказа
Для покупки товара в нашем интернет-магазине выберите понравившийся товар и добавьте его в корзину. Далее перейдите в Корзину и нажмите на «Оформить заказ» или «Быстрый заказ».
Оформление быстрого заказа
При оформлении быстрого заказа, напишите ФИО, телефон и e-mail. Вам перезвонит менеджер и уточнит условия и детали заказа.
Стандартное оформление заказа
Оформление заказа в стандартном режиме выглядит следующим образом: заполняете полностью форму по последовательным этапам: способ доставки, способ оплаты, реквизиты для выставления счета. Далее нажмите кнопку «Оформить заказ».
В процессе оформления Вам придет СМС с кодом подтверждения.
Продажа товара осуществляется ФИЗИЧЕСКИМ и ЮРИДИЧЕСКИМ лицам.
Если иное не указано в счете срок действия счета составляет три календарных дня с даты его выставления.
Счет на оплату будет выслан менеджером после оформления заказа и согласования деталей и условий поставки в телефонном разговоре или email-переписке.
Самовывоз со складов «Комплект Айс»
Поставка в регионы
Стандартный гарантийный срок на поставленный Товар составляет 12 календарных месяцев с даты поставки. Условия по расширенной гарантии, в т.ч. дополнительной гарантии от производителя Вам сообщит менеджер при заключении договора поставки.
Подробнее о гарантийных условияx
Информация по Сервисному центру «ТРЕЙД ГРУПП»
